Choose your location and workspace.
Downtown - Prudden Tech Center
SOS: Shared Office Space’s downtown location features many common areas which are outfitted with high-end furnishings. Furnished offices and desks include monitors and lights. Smart monitors are in the 3 conference rooms and additional monitors available for use through the collaborative work space stations.
Need a bigger private office? All of our offices are constructed from modular wall panels featuring glass, frosted glass, wood treatments, and magnetic glass marker boards that can all be reconfigured to suit your taste.
Our largest conference room seats 24 and we have 2 other rooms for smaller meetings. As member at any level you receive time in your membership to book meetings in the conference room on a weekly basis. Non-members are able to reserve the conference room for a 2 hour meeting or for the day based on availability.
Bathrooms are private and feature UV cleaning lighting. Parking is free to you and your guests. An EV Charger is available for members.
Prudden Tech Center Floor Plan
Savor the possibilities.
Check out standard and sample custom floor plans with renderings below.
Need help visualizing your custom office suite at SOS? Call us.
We are happy to create plans and renderings tailored to meet your needs.
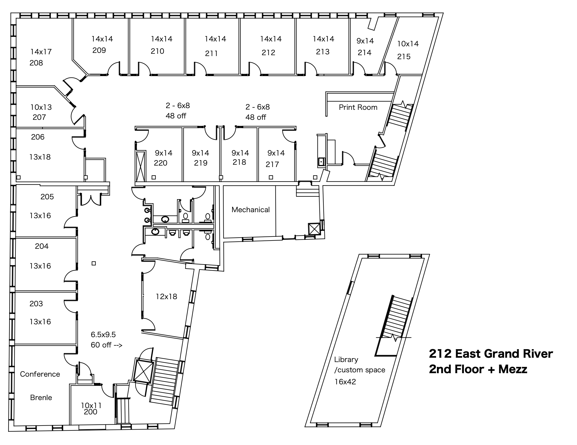
Old Town Location- 212 East Grand River
SOS: Shared Office Space Old Town is located at the river walk entrance featuring beautiful views of the river. The building is a historical and renovated two-story building which has a brick facade and an abundance of light. Inside are large executive private offices, three conference rooms, solid cherry wood office furniture and executive workstations. Parking is available. Fiber Internet and furniture for of 1-2 people offices are included. All conference rooms are shared with members equally, no restrictions. Memberships are yearly at the Old Town location and discounts are available for memberships beyond a year for excellent credit and history. Please contact us for a tour and to select your private office.

